
Award winning design of Sikh Grammar School Australia
The Vision
The Sikh grammar school is the first of kind initiative in the Sikh community.
The major objective of the institution is to set up a school having students from pre-school to year 12 with the education program based on the syllabuses, curriculum and assessment requirements of registered and accredited schools in NSW.
• There will be facilities in the school for spiritual learning, sports,
cultural activities in line with the Sikh ethos and conventions, Sikh
values, language and heritage.
• It will have its own philosophy, ethos and practices and should excel in
meeting the corporate governance, teaching standards, educational
programs, boarding facilities and public reporting standards, curriculum,
safe and supportive environment, discipline, attendance and
management processes & procedures on the one hand and its premises
and buildings, facilities, educational/financial reporting and operations
on the other hand.
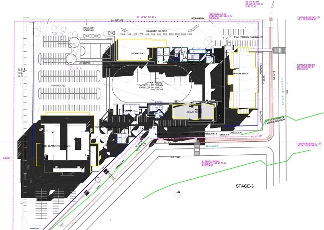
The architectural design work was awarded to arcINOVATIONZ The design was evolved from the closed hand and five fingers.
The palm of the hand depicting school' s playground and five fingers are the multipurpose hall, sports hall, secondary school, primary school and the admin library building. These five learning groups will be closely interlinked to each other offering a great level of interaction amongst the students and teachers.
The Results
An airy and highly flexible interior is the special design feature, which will help, in any future development.
Playgrounds and open spaces are provided in the central location making it the heart of the development depicting the school’s focus on health and fitness as well. This will further reinforce the school & community and will help in local event hosting etc.
There will be learning pods all around the primary and secondary school buildings allowing students to exchange information and learn by having high level of interconnection between multiple groups.

Every building of school has a special characteristic and has been designed to serve its function.

The Admin and Library Building
This school development is highly inspired by the agricultural surroundings and sustainability policies hence the materials chosen for the development are locally available and will be sourced from the green producers. The facade of admin building and multipurpose hall will have the combination of green prefabricated panels and claddings.
In keeping with its functions all the different buildings of the school have been designed to clearly express their relative purposes. The buildings will be spread on approx ten-acre parcel of land with minimal disturbance to the natural levels of land and not overpowering the calm rural surroundings.

Secondary School plan
The Award

Jaspreet Singh with Regional Sydney BDA branch President Henry Ayala (middle)and
Stephen Gee (Far left)
Building Designers Association of NSW conducts every year the state
awards for best designs and best use of various architectural products.
The design of Sikh Grammar School was entered in the competition this
year by our architectural firm arcINOVATIONZ and Jaspreet Singh of
arcINOVATIONZ has been declared the winner for best use of
architectural product .Cad details & Presentation were the key points
appreciated by the judges making this project a great success.
Karelcad as one of BDA’s Joint Venture Partner sponsored this award.
The Design Awards night was held recently at La’aqua – Cockle Bay Wharf at Darling Harbour. Over 200 Designers were present from different states. Regional Sydney BDA members grabbed two other awards.
Jaspreet said, “It is a dream project. Once completed this school will be an innovative and dynamic learning facility.”
-----------------------------
More info about Jaspreet Singh
Before moving to Australia in 2003, Jaspreet worked on many prestigious projects in architecture. He was appreciated by Anandpur sahib Foundation for his innovative design submission for Nishan’e Khalsa , the building proposed to mark the 300th anninversary of Khalsa Panth .He is the architect of the Dashmesh Sadan for Siri Singh Sahib Harbhajan Singh Yogi ji's Sikh Dharma House at Anandpur Sahib . His work at Gurmat Sagar trust involved the design of a meditation centre and a Hospital for alternative systems of Medicine for Prof Manjit Singh .Before moving to Australia he was entrusted upon by then Patiala Commissioner S Jasbir Singh Bir to beautify the famous Barandari gardens and restore the Glory of Kali Devi temple.
For further info about:
Sikh Grammar and its Aims & Objectives:
www.Sikhgrammar.com or
contact Mobile: 0423211914
For Architectural designs or contacting Jaspreet
www.arcinovationz.com.au
Mobile: 0423211914

